CARACTERÍSTICAS DEL PROYECTO

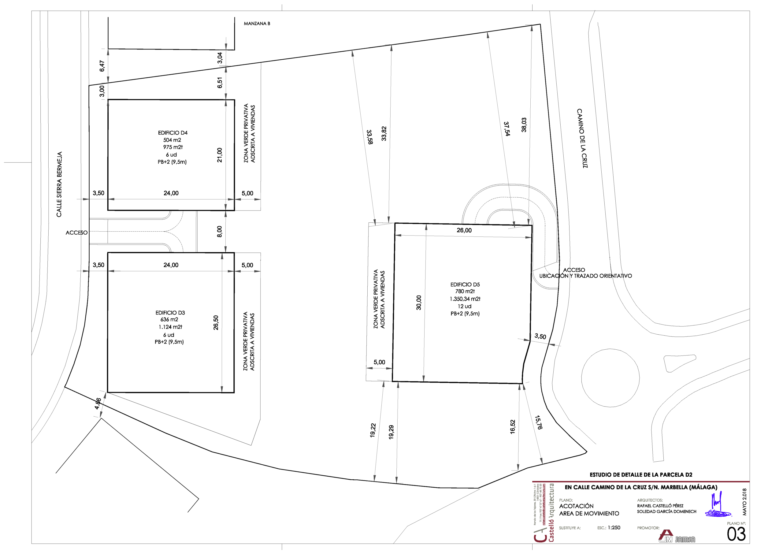
El Estudio de Detalle de la parcela D2, situada en calle Camino de la Cruz s/n, dentro de la urbanización Lomas del Rey, tiene por objeto precisar y complementar la ordenación pormenorizada establecida por el planeamiento vigente, ajustando los parámetros edificatorios y volumétricos para garantizar una implantación arquitectónica coherente, funcional y plenamente integrada en el entorno inmediato.

La actuación se centra en la definición precisa de la edificabilidad, ocupación, alineaciones y rasantes, así como en la correcta adaptación de la edificación a la topografía natural del terreno, optimizando su relación con el viario y los espacios libres colindantes. El estudio permite regular la disposición de los volúmenes edificatorios, asegurando una adecuada transición entre espacios públicos y privados, el respeto a las visuales y la armonización con las parcelas residenciales colindantes.

El documento establece criterios claros para la implantación de la edificación en parcela, controlando alturas, retranqueos y huellas edificadas, con el fin de preservar la calidad urbana del conjunto y responder a los estándares residenciales de alto nivel propios de la Milla de Oro de Marbella. Asimismo, la ordenación propuesta favorece una lectura unitaria del frente urbano del Camino de la Cruz, reforzando la continuidad espacial y la coherencia formal del ámbito.

Desde el punto de vista técnico y urbano, el Estudio de Detalle de la parcela D2 actúa como una herramienta de precisión que garantiza la viabilidad urbanística y arquitectónica del desarrollo, permitiendo materializar un proyecto residencial ajustado al planeamiento, sensible a las condiciones topográficas y alineado con los valores de exclusividad, confort y calidad paisajística que caracterizan a Lomas del Rey y su entorno inmediato.

hola,
¿hablamos?

Lo importante no es lo que somos, es lo que podemos hacer por tí.
Djéjanos información sobre tu consulta y te ayudaremos.

    Resumen de privacidad

    Esta web utiliza cookies para que podamos ofrecerte la mejor experiencia de usuario posible. La información de las cookies se almacena en tu navegador y realiza funciones tales como reconocerte cuando vuelves a nuestra web o ayudar a nuestro equipo a comprender qué secciones de la web encuentras más interesantes y útiles.